ドックレベラーaFX®型 エアー式ドックレベラー
最も人気のあるドックレベラーのスタンダード型
- 可動部分を最小限にしたシンプルな動作で、耐久性に優れ、注油や調整もほとんど不要。コスト効率に優れています。
- 信頼できる動作と実績ある耐久構造設計がドックの性能を改良し、生産性・安全性を向上させます。
- リップおよびランプに高張力鋼を採用
使用頻度の多い環境で長時間ドックレベラーを使用しても歪んだり凹凸になりません。 - 落下防止用サポートレッグを標準装備
格納時はドッグレベラーを支える支柱として、使用中は誤って車両が発車した場合でもドックレベラーをFL位置で停止させフォークリフトの転落事故や荷物の破損を防ぎます。
※FLより上方向で使用の場合に作動
エアーバッグを使った持ち上げ技術は1940年代に商業化され、この頼もしく経済的な技術を生かしてKELLEY®がエアーバッグ式ドックレベラーを開発。今日においてはこのaFX®が市場において最も人気のあるモデルとなりました。
開発者としてドックレベラーの問題を経験し、より優れた製品の開発に着手した結果、誕生したのが革新的なaFX®モデルです。
各称説明

- ❶リップ標準長さ406mm
- ❷サポートレッグ
- 格納時にランプを全作動範囲で支える自動収縮レッグ。
- ❸自浄式ラグタイプヒンジ
- はりとリップアッセンブリーに直接溶接された、業界で最も強いKELLEY®デザインの重厚なヒンジ。
- ❹一体型リップロック
- 日常メンテナンスや清掃時にリップを上昇させたまま保持。
- ❺特許取得ラムダ型ビーム材(はり)
- 圧力をより良く分散することで損耗・疲労を軽減してドックレベラーを長寿命に。
- ❻耐久強化複合材のリフティングバッグ
- 強化塩化ビニール加工のポリエステル繊維をRF溶着。−53℃〜93℃の温度下で性能の低下なく作動。
エアーバッグは20万回の耐久テスト済み。 - ❼クリーンピットデザイン
- オープンフレームで、定期メンテナンス時にピット床へ簡単に進入可能。
- ❽一体型サポートスタンド
- 日常のメンテナンスと清掃時にランプを上昇位置でキープ。
- ❾フレーム(SafeTFrameTM)
- 構造上の優れたサポート力を与え、倉庫床と同じ高さにドックレベラーを調節。
- ❿トウガード
- 作動時に両サイドにできる隙間をカバーする事故防止板。溶接により安全性と強度を確保。スライド板は亜鉛メッキ。ANSI基準によるOSHA安全マーク付き。
操作スイッチ押しボタン1つで簡単に操作。
ボックスは壁に取り付けます。
ファンモーター安全に保護されてエアバッグの下に配置されています。
低圧のファンは自浄タイプでフィルター付き。ホースや取り付け金具が無く、少ないメンテナンスで済むシンプルなデザインです。
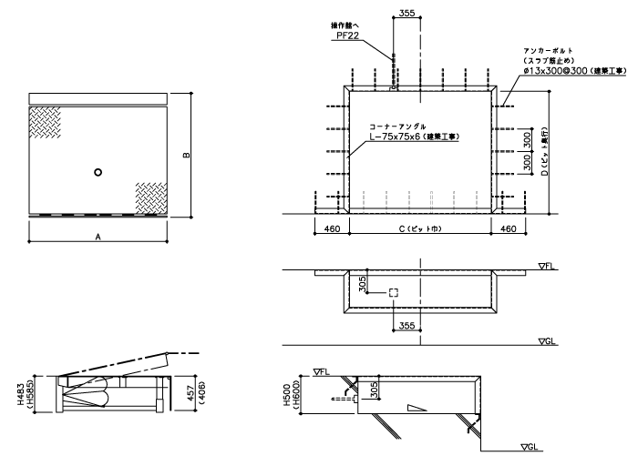
仕様
| 型式\寸法 | 機械寸法(mm) W(A)× L(B)× H |
ピット寸法(mm) W(C)× L(D)× H |
|---|---|---|
| 6×6 | 1829×1660×483 | 1880×1630×500 |
| 6×8 | 1829×2270×483 | 1880×2240×500 |
| 6×10 | 1829×2865×585 | 1880×2840×600 |
| 6.5×6 | 1981×1660×483 | 2030×1630×500 |
| 6.5×8 | 1981×2270×483 | 2030×2240×500 |
| 6.5×10 | 1981×2865×585 | 2030×2840×600 |
| 7×6 | 2108×1660×483 | 2160×1630×500 |
| 7×8 | 2108×2270×483 | 2160×2240×500 |
| 7×10 | 2108×2865×585 | 2160×2840×600 |
通過荷重
6,000kg/9,000kg/11,000kg
電気容量
AC100V 単相 50/60Hz 1.4KW
オプション
- ウェザーシールブラシ
- エナジーガード(エネルギー損失対策)
- リップ長さ406mm、508mm
- リップテーパー加工
- 安全バリアリップ
- ドアインターロック
- ステンレス制御箱
外形図


