ドックレベラーCM型 機械式ドックレベラー
最大限の効率と性能をもつ安全なレベラー
- 最大限の効率と性能のためにデザインされた、スプリング補助の機械式ドックレベラーです。
- 一点調整式のエクステンションスプリングや無制限フロート・ホールダウン、メンテナンス用スタンドなどの上質で高性能の構成部品を装備しているので、操作も簡単で安全です。
- リップおよびランプに高張力鋼を採用
使用頻度の多い環境で長時間ドックレベラーを使用しても歪んだり凹凸になりません。 - 落下防止用セーフティレッグを標準装備
使用中に誤って車両が発車した場合でもドックレベラーをFLより若干下がった位置で停止させフォークリフトの転落事故や荷物の破損を防ぎます。
※FLより上方向で使用の場合に作動
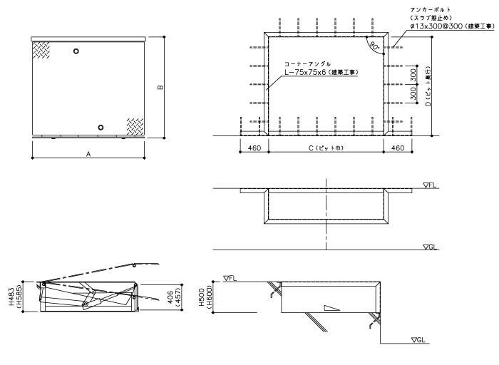
各称説明

- ❶リップ標準長さ406mm
- ❷一体型リップロック
- 日常メンテナンスや清掃時にリップを上昇させたまま保持。
- ❸ハイドラ・カム
- 最高上昇位置でリップを優しく伸長し固定するリップコントロール機構。
- ❹セーフティレッグ
- 落下防止用のスチール製セーフティレッグを標準装備。
- ❺フレーム(SafeTFrameTM)
- 構造上の優れたサポート力を与え、倉庫床と同じ高さにドックレベラーを調節。
- ❻リップキーパー
- オーバーヘッドドアが閉まっている時は、リップ・ランプを格納位置で安全に固定。
- ❼エクステンションスプリング※
- 一点調整式で高い強度と耐久性があり、簡単にウォークダウンが可能。
- ❽クリーンピットデザイン
- オープンフレームで、定期メンテナンス時にピット床へ簡単に進入可能。
- ❾一体型サポートスタンド
- 日常のメンテナンスと清掃時にランプを上昇位置でキープ。
- ❿無制限フロート・ホールダウン※
- ドックレベラーの作動範囲全域でホールダウンアッセンブリーが働き、上昇〜下降を安全に作動。
- ⓫トウガード
- 作動時に両サイドにできる隙間をカバーする事故防止板。溶接により安全性と強度を確保。スライド板は亜鉛メッキ。ANSI基準によるOSHA安全マーク付き。
※作動効率を最大限にできるよう、無制限フロート・ホールダウンを採用。またエクステンションスプリングの働きで、少ない力でも位置合わせのウォークダウンが可能です。この独自のデザインが構成部品の疲労を軽減し、通常のフロートスプリング式よりも信頼性があります。また、維持コスト全般が従来の機械式ドックレベラーよりも低くなりました。
仕様
| 型式\寸法 | 機械寸法(mm) W(A)× L(B)× H |
ピット寸法(mm) W(C)× L(D)× H |
|---|---|---|
| 6×6 | 1810×1636×483 | 1860×1600×500 |
| 6×8 | 1810×2247×483 | 1860×2210×500 |
| 6×10 | 1810×2859×585 | 1860×2820×600 |
| 6.5×6 | 1962×1636×483 | 2012×1600×500 |
| 6.5×8 | 1962×2247×483 | 2012×2210×500 |
| 6.5×10 | 1962×2859×585 | 2012×2820×600 |
| 7×6 | 2115×1636×483 | 2165×1600×500 |
| 7×8 | 2115×2247×483 | 2165×2210×500 |
| 7×10 | 2115×2859×585 | 2165×2820×600 |
※上記ピット寸法Hは標準のリップ長さの場合です。リップ長さ457/508mmの場合は全て600mmになります。
通過荷重
6,000kg/9,000kg
オプション
- ウェザーシールブラシ
- エナジーガード(エネルギー損失対策)
- リップ長さ457mm、508mm
- リップテーパー加工
外形図


