ドックレベラーHK型 油圧式ドックレベラー
高い生産性を維持し、長寿命
- 先端の油圧技術とシンプルなデザインで、メンテナンスコストを削減し高い生産性を維持します。
- 各シリンダーには特許取得の油圧速度ヒューズを内蔵し、荷物が載ったランプの急降下をおよそ76mmで停止させます。また、荷重をより均等に分散させるよう、シリンダーをデッキ前方に配置。シリンダーロッドは床から離れているのでダメージの心配がありません。
- リップおよびランプに高張力鋼を採用
使用頻度の多い環境で長時間ドックレベラーを使用しても歪んだり凹凸になりません。 - 落下防止用サポートレッグを標準装備
格納時はドッグレベラーを支える支柱として、使用中は誤って車両が発車した場合でもドックレベラーをFL位置で停止させフォークリフトの転落事故や荷物の破損を防ぎます。
※FLより上方向で使用の場合に作動
各称説明

- ❶リップ標準長さ406mm
- ❷直径102mmの油圧シリンダー
- 強度と効率を高めるため、ランプの前方に配置。
- ❸一体型リップロック
- 日常メンテナンスや清掃時にリップを上昇させたまま保持。
- ❹自浄式ラグタイプヒンジ
- はりとリップアッセンブリーに直接溶接された、業界で最も強いKELLEY®デザインの重厚なヒンジ。
- ❺トウガード
- 作動時に両サイドにできる隙間をカバーする事故防止板。溶接により安全性と強度を確保。スライド板は亜鉛メッキ。ANSI基準によるOSHA安全マーク付き。
- ❻フレーム(SafeTFrameTM)
- 構造上の優れたサポート力を与え、倉庫床と同じ高さにドックレベラーを調節。
- ❼完全密閉・非通気式油圧アッセンブリー※
- シリンダーのホースは1本で、長寿命かつメンテナンスコストを低減
- ❽クリーンピットデザイン
- オープンフレームで、定期メンテナンス時にピット床へ簡単に進入可能。
- ❾一体型サポートスタンド
- 日常のメンテナンスと清掃時にランプを上昇位置でキープ。
- ❿サポートレッグ
- 格納時にランプを全作動範囲で支える自動収縮レッグ。
- ⓫特許取得ラムダ型ビーム材(はり)
- 圧力をより良く分散することで損耗・疲労を軽減してドックレベラーを長寿命に。
※完全密閉された非通気式の回生型油圧システムを採用しています。従来の通気式では、シリンダーロッドが外気や湿気にさらされますが、この回生型ではドックレベラー格納時にロッド全体が油に浸かるため、錆びやシーリングの損耗を低減します。また、油漏れのリスクを軽減するため、油圧ポンプとモーターは、ホース2本と接続金具4つを使用したアッセンブリーになっています。

安全バリアリップ(オプション)
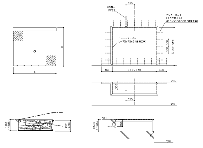
仕様
| 型式\寸法 | 機械寸法(mm) W(A)× L(B)× H |
ピット寸法(mm) W(C)× L(D)× H |
|---|---|---|
| 6×6 | 1829×1660×483 | 1880×1630×500 |
| 6×8 | 1829×2270×483 | 1880×2240×500 |
| 6×10 | 1829×2865×585 | 1880×2840×600 |
| 6×12※ | 1829×3490×585 | 1880×3460×600 |
| 6.5×6 | 1981×1660×483 | 2030×1630×500 |
| 6.5×8 | 1981×2270×483 | 2030×2240×500 |
| 6.5×10 | 1981×2865×585 | 2030×2840×600 |
| 6.5×12※ | 1981×3490×585 | 2030×3460×600 |
| 7×6 | 2108×1660×483 | 2160×1630×500 |
| 7×8 | 2108×2270×483 | 2160×2240×500 |
| 7×10 | 2108×2865×585 | 2160×2840×600 |
| 7×12※ | 2108×3490×585 | 2160×3460×600 |
※6×12、6.5×12、7×12は通過荷重9,000kg、11,000kgのみ。
通過荷重
6,000kg/9,000kg/11,000kg
電気容量
AC200V 三相 50/60Hz 0.75KW
オプション
- ウェザーシールブラシ
- エナジーガード(エネルギー損失対策)
- リップ長さ406mm、508mm
- リップテーパー加工
- 安全バリアリップ
- ドアインターロック
- ステンレス制御箱
外形図


